賃貸オフィス東京.com

スタッフブログ

東京の賃貸オフィス・
賃貸事務所をお探しの方へ

徹底サポートのスタッフブログ

「Tsao Hibiya」内幸町駅から直進4分⏩️スマートなオフィスビルです

Tsao Hibiyaのメイン画像

一件シンプルに見える外観ですが、細部に上質さが宿っています。
日比谷の洗練された雰囲気によく馴染むオフィスビルです。

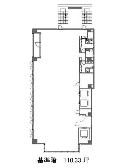
間取り図を見る

FLOOR MAP

基準階は約110坪の整形空間で、柱のないスッキリとしたレイアウト。。
水回りは奥側に集約されており、執務エリアを自由に設計可能。
1階にはシャワールームを設置し、アフターランや通勤後のリフレッシュにも対応。
働く人の快適さを追求した、機能美に満ちたフロア構成です。

その他の画像を見る

OTHER PHOTO
Tsao Hibiyaのエントランス エントランス
Tsao Hibiyaのエントランス エントランス
Tsao Hibiyaのホール ホール
Tsao Hibiyaのエレベーター エレベーター

建物の基本情報

INFORMATION

名称Tsao Hibiya

住所東京都港区新橋3-3-13

竣工2017年11月

規模地上12階地下1階

構造S造

交通都営三田線「内幸町駅」徒歩4分

設備等エレベーター3基・OAフロア・個別空調
男女別トイレ・機械警備・駐車場

終わりに

END

緑と静謐が息づく、日比谷の知的オアシス。TSAO HIBIYAの洗練

日比谷通り沿いに佇む「TSAO HIBIYA」。
その外観は無駄を削ぎ落としたシルバーグレートーンで統一され、
街の喧騒の中に静かに溶け込みながらも、存在感を放つ建物です。

エントランスはまるでアートギャラリーのような趣。
一歩中に足を踏み入れると、視界に飛び込むのは壁一面を彩る見事なグリーンウォール。
木質と植栽のコントラストが美しく、自然と深呼吸したくなる空間が広がります。

1フロア約110坪のオフィスは、1フロア1テナント仕様。
整形で無柱、天井高2.8mという開放感のある間取りが魅力です。
さらに各階にはミニベランダが設けられており、新橋方面の眺望を楽しみながら
オンからオフへと気持ちを切り替えられる設計になっています。

加えて、1階にはシャワールームを完備。
アクティブに働くワーカーにとってもうれしいポイントです。

デザイン・機能・快適性がバランスよく調和したTSAO HIBIYA。
都会の真ん中にありながら、“自然と共に働く”という価値を体現する
スタイリッシュなオフィスビルです。

その他のおすすめ物件を見る

OTHER

日本橋本町東急ビルは、三越前駅徒歩3分、江戸桜通り沿いの角地に立地するオフィスビルです。
2004年築ながら、リニューアルや丁寧な管理により、現在でも高い美観を維持。
ガラス面とフレームを基調とした外観は、周辺の街並みに調和しつつ、品格ある存在感を放ちます。
隣接するコレド室町2・コレド室町をはじめ、商業・金融機能が集積した日本橋らしい利便性の高い環境が整っています。

2026.04.13 中央区

新宿通りと貝坂通りが交わる角地に佇む本物件。
オフィスとしての使いやすさは保ちながら、建物内外共にデザイン性が高く、この物件にしかない味わいがあります。

2025.12.01 千代田区

”京橋彩区”を構成するビルの一つとして誕生した本物件。
アートが融合する次世代ビルで次のステージへ誘います✨️

2025.11.11 中央区