6階 6Cは現在募集がありません
2フロア募集区画あり

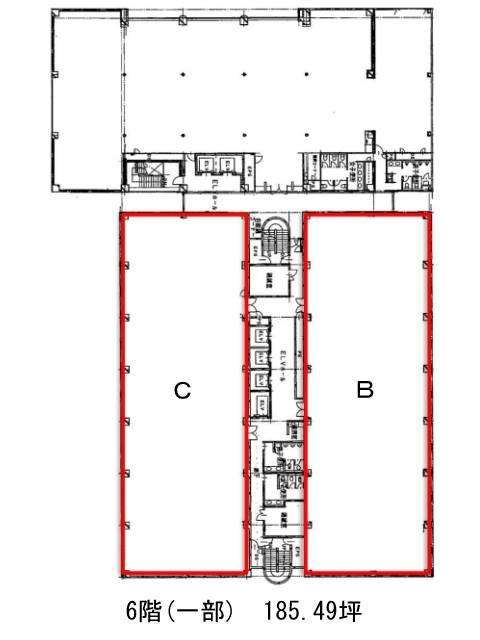
JMFビル東陽町01 6階 6C

前の写真 次の写真

物件概要

物件番号

105-00112-98

物件名

JMFビル東陽町01

所在地

面積

185.49坪

賃料(共益費含)


入居日

募集終了

保証金

礼金

更新料

償却費

竣工

1990年1月

構造

SRC

規模

地上8階/地下1階

トイレ

男女別

空調

個別空調

エレベーター

セキュリティ

駐車場

耐震

新耐震基準

基準階天井高

2600mm

空室延床面積

370.98坪

最寄駅

情報更新日

2026/04/24

JMFビル東陽町01のテナント募集中区画

階数 面積 賃料(共益費含む) 保証金 入居可能日 検討リスト 詳細
5 185.49坪 応相談(応相談) 応相談
5 185.49坪 応相談(応相談) 応相談 2026年8月上旬
…新着物件

JMFビル東陽町01のアクセス

JMFビル東陽町01の物件情報

JMFビル東陽町01(江東区東陽)は東陽町駅(1番出口)から徒歩7分の賃貸オフィスです。
光沢ある石調タイルと天井の高い出入口が開放的で高級感ある印象を与えます。エントランスは清潔感に溢れ、間接照明の柔らかい光が来客にも好印象を与えます。1990年竣工、地上8階・地下1階の鉄骨鉄筋コンクリート造で、場所は四ツ目通りから少し入った場所に位置し、徒歩圏内にコンビニ、郵便局、銀行、多くの飲食店があり、利便性は非常に良いエリアです。基準階は約370坪で、設備はOAフロア、個別空調、男女別トイレ、エレベーターは5基設置、セキュリティは機械警備で安心です。貸室内は無柱空間となっており自由なレイアウトを可能にします。

近隣のエリア・駅から探す