4階は現在募集がありません
1フロア募集区画あり

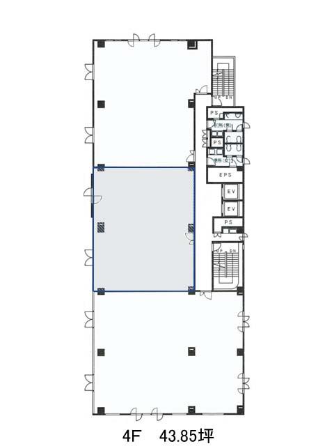
ASKビル 4階

前の写真 次の写真

物件概要

物件番号

105-00055-61

物件名

ASKビル

所在地

面積

43.85坪

賃料(共益費含)


入居日

募集終了

保証金

礼金

更新料

償却費

竣工

1989年6月

構造

RC

規模

地上5階

トイレ

男女別

空調

個別空調

エレベーター

セキュリティ

駐車場

耐震

新耐震基準

基準階天井高

2600mm

空室延床面積

47.09坪

最寄駅

情報更新日

2026/03/05

ASKビルのテナント募集中区画

階数 面積 賃料(共益費含む) 保証金 入居可能日 検討リスト 詳細
4 47.09坪 応相談(応相談) 応相談 2026年6月上旬
…新着物件

ASKビルのアクセス

ASKビルの物件情報

ASKビル(江東区東陽)は東陽町駅(3番出口)から徒歩2分の賃貸オフィスです。
1階にコンビニがある非常に便利なビルとなっております。1989年竣工ですが、外観は淡いベージュのタイル張りで清潔感があり、エントランスや共用部は清掃が行き届いております。地上5階建ての鉄筋コンクリート造で、永代通りから一本入ったところにあるため、静かで快適な環境でお仕事が可能です。コンビニはもちろん駅前の飲食店も利用可能で、昼食・夕食問わず困ることはありません。OAフロア、個別空調、男女別トイレ、エレベーターは2基と設備面は充実しており、セキュリティは機械警備を採用しております。貸室内は柱はあるものの、本数は少ないためレイアウトは考えやすいです。
ASKビルは東陽町駅(3番出口)の他に南砂町駅(1番出口)徒歩13分で利用も可能です。

近隣のエリア・駅から探す