1階は現在募集がありません
2フロア募集区画あり

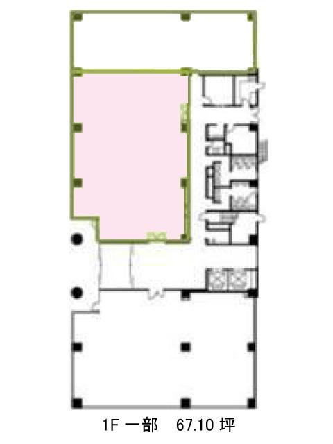
東陽パークビル 1階

前の写真 次の写真

物件概要

物件番号

105-00071-10

物件名

東陽パークビル

所在地

面積

67.10坪

賃料(共益費含)


入居日

募集終了

保証金

礼金

更新料

償却費

竣工

1991年6月

構造

規模

地上6階

トイレ

男女別

空調

エレベーター

セキュリティ

駐車場

耐震

新耐震基準

基準階天井高

2520mm

空室延床面積

318.81坪

最寄駅

情報更新日

2026/04/24

東陽パークビルのテナント募集中区画

階数 面積 賃料(共益費含む) 保証金 入居可能日 検討リスト 詳細
3 219.89坪 応相談(応相談) 応相談
4 98.92坪 応相談(応相談) 応相談
…新着物件

東陽パークビルのアクセス

東陽パークビルの物件情報

東陽パークビル(江東区東陽)は東陽町駅(1番出口)から徒歩9分の賃貸オフィスです。
1991年竣工、地上6階建てで、四ツ目通りから少し入った建物が密集していないエリアにあり、静かな環境でお仕事が可能です。近隣にはコンビニ、飲食店が多くあり、日替わりで昼食を食べるお店を変えるのもおすすめです。基準階は約220坪で、共用部を中央にしたコの字型の間取りです。貸室内は柱も少なく、レイアウトの自由度は高いと言えます。また1フロア1テナントと隣に入居者がいないため、隣を気にすることなく利用可能です。主な設備としては、OAフロア、個別空調、男女別トイレ、エレベーターは2基と充実の設備です。有人警備で安心してお過ごしすることが可能です。
東陽パークビルは東陽町駅(1番出口)の他に木場駅(1番出口)徒歩12分で利用も可能です。

近隣のエリア・駅から探す