東陽パークビルのテナント募集中区画
| 階数 | 面積 | 賃料(共益費含む) | 保証金 | 入居可能日 | 検討リスト | 詳細 |
|---|---|---|---|---|---|---|
| 3 | 219.89坪 | 応相談(応相談) | 応相談 | 即 | ||
| 4 | 98.92坪 | 応相談(応相談) | 応相談 | 即 |
…新着物件
アクセス
東陽パークビルの物件情報
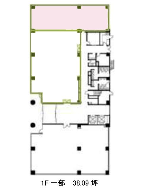
東陽パークビル(江東区東陽)は東陽町駅(1番出口)から徒歩9分の賃貸オフィスです。1991年竣工、地上6階建てで、四ツ目通りから少し入った建物が密集していないエリアにあり、静かな環境でお仕事が可能です。近隣にはコンビニ、飲食店が多くあり、日替わりで昼食を食べるお店を変えるのもおすすめです。基準階は約220坪で、共用部を中央にしたコの字型の間取りです。貸室内は柱も少なく、レイアウトの自由度は高いと言えます。また1フロア1テナントと隣に入居者がいないため、隣を気にすることなく利用可能です。主な設備としては、OAフロア、個別空調、男女別トイレ、エレベーターは2基と充実の設備です。有人警備で安心してお過ごしすることが可能です。東陽パークビルは東陽町駅(1番出口)の他に木場駅(1番出口)徒歩12分で利用も可能です。

