3階は現在募集がありません

新東陽ビル 3階

前の写真 次の写真

物件概要

物件番号

105-00095-13

物件名

新東陽ビル

所在地

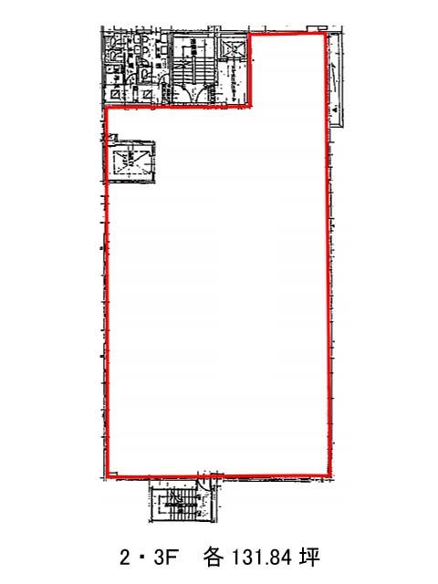
面積

131.84坪

賃料(共益費含)


入居日

募集終了

保証金

礼金

更新料

償却費

竣工

1984年11月

構造

RC

規模

地上6階

トイレ

男女別

空調

個別空調

エレベーター

セキュリティ

駐車場

耐震

新耐震基準

基準階天井高

空室延床面積

最寄駅

情報更新日

2025/07/11

新東陽ビルのテナント募集中区画

現在、空室がございません。

新東陽ビルのアクセス

新東陽ビルの物件情報

新東陽ビル(江東区東陽)は東陽町駅(3番出口)から徒歩1分の賃貸オフィスです。
1984年竣工、地上6階建RC造のビルです。横長で重厚感のある外観をしています。前面道路側にガラス窓がずらりと並び、十分な採光がとれるでしょう。貸室は長方形の無柱空間で、レイアウトがしやすい形状です。共用部がフロアの一箇所にあつまり動線がよいでしょう。EV1基・機械警備・個別空調・非常階段2箇所・男女別トイレといった設備仕様をしています。
新東陽ビルは東陽町駅(3番出口)の他に木場駅(1番出口)徒歩13分、南砂町駅(1番出口)徒歩14分で利用も可能です。

近隣のエリア・駅から探す