2階は現在募集がありません
ISM門前仲町 2階
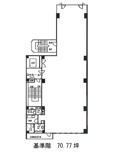
物件概要
ISM門前仲町のテナント募集中区画
現在、空室がございません。
アクセス
ISM門前仲町の物件情報
ISM門前仲町(江東区富岡)は門前仲町駅(1番出口)から徒歩5分の賃貸オフィスです。ISM門前仲町は門前仲町駅(1番出口)の他に木場駅(4a番出口)徒歩6分、越中島駅(3番出口)徒歩13分で利用も可能です。

