7階は現在募集がありません
1フロア募集区画あり

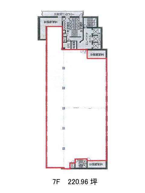
第1びる本館 7階

前の写真 次の写真

物件概要

物件番号

115-00004-110

物件名

第1びる本館

所在地

面積

220.96坪

賃料(共益費含)


入居日

募集終了

保証金

礼金

更新料

償却費

竣工

1987年4月

構造

RC

規模

地上8階/地下1階

トイレ

男女別

空調

個別空調

エレベーター

セキュリティ

駐車場

耐震

新耐震基準

基準階天井高

2430mm

空室延床面積

354.04坪

最寄駅

情報更新日

2026/02/13

第1びる本館のテナント募集中区画

階数 面積 賃料(共益費含む) 保証金 入居可能日 検討リスト 詳細
3 354.04坪 応相談(応相談) 応相談 2026年4月上旬
…新着物件

第1びる本館のアクセス

第1びる本館の物件情報

第1びる本館(江東区木場)は木場駅(4b番出口)から徒歩4分の賃貸オフィスです。
1987年竣工ですが2019年にリニューアルが行われ、トイレや共用部などは清潔感に溢れています。地上8階・地下1階の鉄筋コンクリート造で、永代通りの角地に位置する視認性良好のビルです。近隣にはコンビニ、郵便局、銀行ATMなどがあり、非常に利便性の高いエリアです。基準階は約354坪で、主な設備はOAフロア、個別空調、男女別トイレを備え、エレベーターは3基設置されています。有人・機械警備併用のため安心して業務に取り掛かれるでしょう。貸室内はほぼ長方形で中央に柱がありますが、柱を境にすればレイアウトの自由度は高いと思います。
第1びる本館は木場駅(4b番出口)の他に門前仲町駅(1番出口)徒歩9分で利用も可能です。

近隣のエリア・駅から探す