TFTビルのテナント募集中区画
…新着物件
TFTビルのアクセス
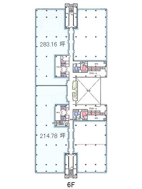
TFTビルの物件情報
TFTビル(江東区有明)は東京ビッグサイト駅(北口)から徒歩1分の賃貸オフィスです。館内施設の充実度が非常に高く、コンビニ、郵便局、ATM、複数の飲食店、薬局、100円均一ショップまであります。青海・有明南連絡船に面し、傾斜のついた外観がダイナミックで視認性抜群のビルです。1996年竣工、地上9階・地下1階の鉄骨造で、基準階は約2924坪の大型貸しオフィスになります。貸室内に柱があるので、区画に分けてレイアウトを考えるのがおすすめです。OAフロア、セントラル空調、男女別トイレ、エレベーターは複数設置と充実の設備で、有人・機械警備導入で安心してお仕事が可能です。TFTビルは東京ビッグサイト駅(北口)の他に国際展示場駅(出口3)徒歩8分、有明駅(西口)徒歩10分で利用も可能です。

