TFTビル 5階 東館


物件概要
物件番号
117-00005-391物件名
TFTビル所在地
- 東京都江東区有明3-6-11
- アクセスマップ
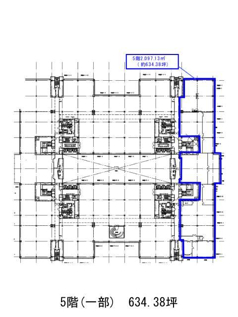
面積
634.38坪賃料(共益費含)
:応相談応相談
入居日
2025年11月上旬保証金
応相談礼金
なし更新料
なし償却費
なし竣工
1996年2月構造
SRC規模
地上9階/地下1階トイレ
男女別空調
個別空調エレベーター
有セキュリティ
駐車場
有耐震
新耐震基準基準階天井高
2700mm空室延床面積
1071.15坪情報更新日
2025/10/03TFTビルのテナント募集中区画
階数 | 面積 | 賃料(共益費含む) | 保証金 | 入居可能日 | 検討リスト | 詳細 |
---|---|---|---|---|---|---|
5 | 634.38坪 | 応相談(応相談) | 応相談 | 2025年11月上旬 | ||
6 | 122.40坪 | 応相談(応相談) | 応相談 | 2026年1月上旬 | ||
8 | 104.96坪 | 応相談(応相談) | 応相談 | 即 | ||
9 | 79.92坪 | 応相談(応相談) | 応相談 | 2026年1月中旬 | ||
9 | 129.49坪 | 応相談(応相談) | 応相談 | 2026年2月上旬 |
…新着物件
アクセス
TFTビルの物件情報
TFTビル(江東区有明)は東京ビッグサイト駅(北口)から徒歩1分の賃貸オフィスです。
館内施設の充実度が非常に高く、コンビニ、郵便局、ATM、複数の飲食店、薬局、100円均一ショップまであります。青海・有明南連絡船に面し、傾斜のついた外観がダイナミックで視認性抜群のビルです。1996年竣工、地上9階・地下1階の鉄骨造で、基準階は約2924坪の大型貸しオフィスになります。貸室内に柱があるので、区画に分けてレイアウトを考えるのがおすすめです。OAフロア、セントラル空調、男女別トイレ、エレベーターは複数設置と充実の設備で、有人・機械警備導入で安心してお仕事が可能です。
TFTビルは東京ビッグサイト駅(北口)の他に国際展示場駅(出口3)徒歩8分、有明駅(西口)徒歩10分で利用も可能です。