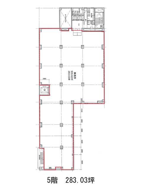
安田8号ビル 5階
物件概要
安田8号ビルのテナント募集中区画
| 階数 | 面積 | 賃料(共益費含む) | 保証金 | 入居可能日 | 検討リスト | 詳細 |
|---|---|---|---|---|---|---|
| 4 | 268.25坪 | 応相談(応相談) | 応相談 | 2026年7月 | ||
| 5 | 283.03坪 | 応相談(応相談) | 応相談 | 2026年7月 | ||
| 6 | 117.68坪 | 応相談(応相談) | 応相談 | 2026年7月 |
…新着物件
安田8号ビルのアクセス
安田8号ビルの物件情報
安田8号ビル(港区海岸)は芝浦ふ頭駅(西口)から徒歩6分の賃貸オフィスです。外観は全体的に白を基調とした色合いで、シンプルなデザインとなっております。ビル内にはOAフロアが備えられており、個別空調も完備されていて、トイレも男女別となっているため、備面は充実しております。駐車場を備えたビルでもあり、セキュリティは機械警備を導入しているため、安心です。ビルの1Fには社員食堂が入っているほか、近隣のビルにもスーパーやコンビニが営業しているため、休憩時等に活用しやすいでしょう。また、事務所以外に倉庫としてのご利用も可能です。安田8号ビルは芝浦ふ頭駅(西口)の他に田町駅(芝浦口)徒歩12分、日の出駅(東口)徒歩12分で利用も可能です。

