5階 5西は現在募集がありません
1フロア募集区画あり

ピアシティ芝浦ビル 5階 5西

前の写真 次の写真

物件概要

物件番号

119-00032-170

物件名

ピアシティ芝浦ビル

所在地

面積

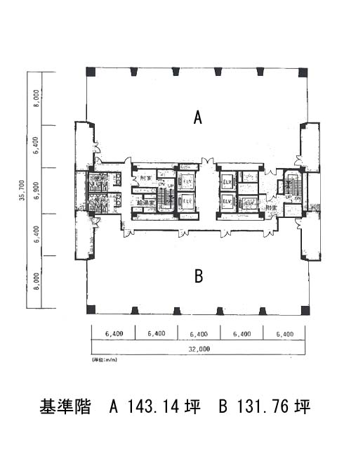
131.76坪

賃料(共益費含)


入居日

募集終了

保証金

礼金

更新料

償却費

竣工

1994年7月

構造

SRC

規模

地上16階/地下3階

トイレ

男女別

空調

セントラル+個別空調

エレベーター

セキュリティ

駐車場

耐震

新耐震基準

基準階天井高

2700mm

空室延床面積

65.54坪

最寄駅

情報更新日

2026/02/25

ピアシティ芝浦ビルのテナント募集中区画

階数 面積 賃料(共益費含む) 保証金 入居可能日 検討リスト 詳細
6 65.54坪 応相談(応相談) 応相談
…新着物件

ピアシティ芝浦ビルのアクセス

ピアシティ芝浦ビルの物件情報

ピアシティ芝浦ビル(港区海岸)は芝浦ふ頭駅(西口)から徒歩6分の賃貸オフィスです。
SRC造、1994年竣工地上16階地下3階建のビルです。ミラーガラス貼りでスタイリッシュな外観をしています。正方形のフロアは、コア部分に共用部が集約されており、貸室が効率よく使えるでしょう。設備仕様としてEV・駐車場・機械警備・OAフロア・貸室外の男女別トイレ・非常階段2箇所があります。空調はセントラル空調・個別空調併用となります。貸室は支柱が中央に無く、すっきりした形状をしています。出入口が複数あり、来客用と動線を分けられるでしょう。
ピアシティ芝浦ビルは芝浦ふ頭駅(西口)の他に日の出駅(東口)徒歩9分、田町駅(芝浦口)徒歩13分で利用も可能です。

近隣のエリア・駅から探す