14階は現在募集がありません
LOOP-X 14階
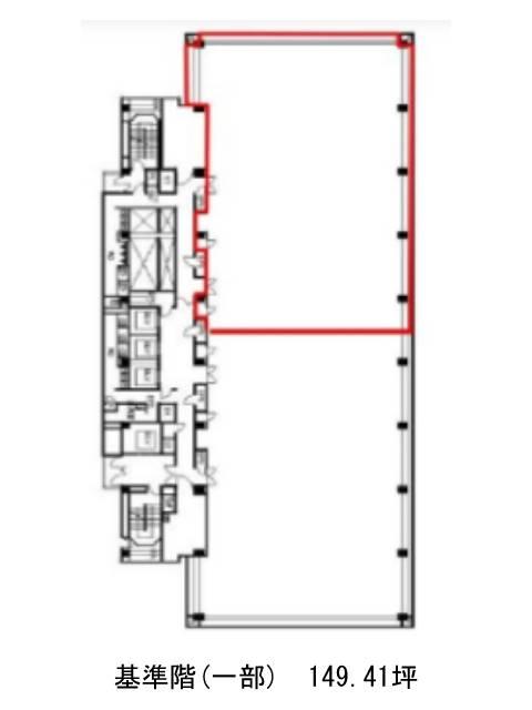
物件概要
LOOP-Xのテナント募集中区画
現在、空室がございません。
アクセス
LOOP-Xの物件情報
LOOP-X(港区海岸)は芝浦ふ頭駅(西口)から徒歩9分の賃貸オフィスです。ライン上に並んだガラス窓のデザインがスタイリッシュな外観です。無柱の整形オフィスの窓からは、レインボーブリッジなど東京湾岸の美しい眺望が開けています。ビル内にはOAフロアが備えられており、トイレは男女別となっております。駐車場も完備のため、車の利用もしやすい環境となっております。エレベーターは6基も設置されているため、待ち時間は少ないでしょう。そして耐震性も新耐震基準であるため、安心です。また周辺にはコンビニや飲食店、郵便局などが複数あるため利便性が高いです。LOOP-Xは芝浦ふ頭駅(西口)の他に田町駅(芝浦口)徒歩14分で利用も可能です。

