磯村ビルのテナント募集中区画
| 階数 | 面積 | 賃料(共益費含む) | 保証金 | 入居可能日 | 検討リスト | 詳細 |
|---|---|---|---|---|---|---|
| 6 | 124.02坪 | 応相談(応相談) | 応相談 | 2026年2月上旬 |
…新着物件
アクセス
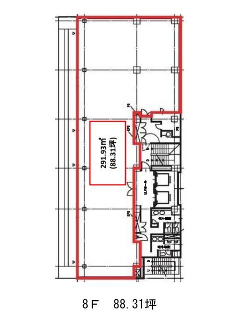
磯村ビルの物件情報
磯村ビル(港区虎ノ門)は虎ノ門駅(7番出口)から徒歩2分の賃貸オフィスです。外観はブラウントーンの石造りで重厚な佇まい。間口が広く存在感があります。虎ノ門交差点から一本入った立地で、駅至近な点も大きな魅力のひとつです。
基準階は約124坪。柱の少ない整形フロアは、レイアウトの自由度が高く、多人数利用や分割ニーズにも柔軟に対応できます。空調は個別方式、OAフロア、床荷重300kg/㎡など、機能性も十分。水回り(男女別トイレ・給湯)は貸室外に集約されており、執務スペースを広く使える設計です。
エントランスには2基のエレベーターを備え、車寄せや機械式駐車場も完備。来客対応から日々の通勤まで快適にこなせる仕様です。築年数は経過しているものの、管理状態が良く、信頼感のあるビルといえます。磯村ビルは虎ノ門駅(7番出口)の他に霞ケ関駅(A12番出口)徒歩4分、虎ノ門ヒルズ駅(B4番出口)徒歩6分で利用も可能です。

