6階は現在募集がありません
虎ノ門東洋共同ビル 6階
物件概要
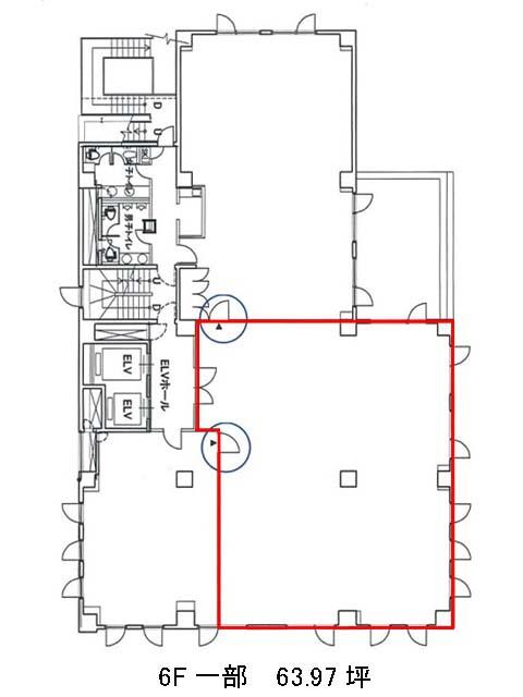
虎ノ門東洋共同ビルのテナント募集中区画
現在、空室がございません。
虎ノ門東洋共同ビルのアクセス
虎ノ門東洋共同ビルの物件情報
虎ノ門東洋共同ビル(港区虎ノ門)は虎ノ門駅(B6番出口)から徒歩2分の賃貸オフィスです。深みのあるベージュカラーの外観で上品なイメージのオフィスビルです。地上9階建て。
石造りのビル入口と二重エントランスにより重厚感があります。ホールは落ち着いたライティングと控えめに置かれた観葉植物などでこちらも品格のある雰囲気です。
1フロアは最大約150坪の規模ですが、募集時期やフロアによって様々なサイズの分割区画がございます。主な設備は個別空調・OAフロア・男女別トイレ・駐車場。エレベーターは2基設置済み。共用部と執務室への動線は複数確保されており、使い勝手が良いでしょう。
虎ノ門駅に程近い当ビル周辺は郵便局が至近である他、飲食店・コンビニ・銀行支店が点在しており、利便性に優れた環境です。虎ノ門東洋共同ビルは虎ノ門駅(B6番出口)の他に虎ノ門ヒルズ駅(B4番出口)徒歩3分、霞ケ関駅(A12番出口)徒歩6分で利用も可能です。

