9階は現在募集がありません
1フロア募集区画あり

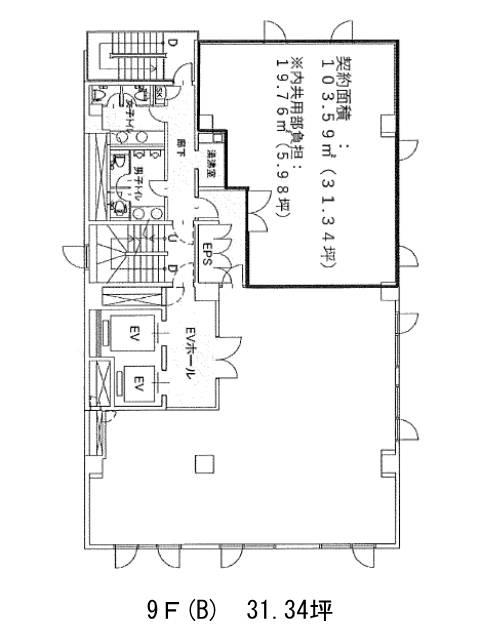
虎ノ門東洋共同ビル 9階

前の写真 次の写真

物件概要

物件番号

122-00219-205

物件名

虎ノ門東洋共同ビル

所在地

面積

31.34坪

賃料(共益費含)


入居日

募集終了

保証金

礼金

更新料

償却費

竣工

1993年3月

構造

SRC

規模

地上9階/地下3階

トイレ

男女別

空調

個別空調

エレベーター

セキュリティ

駐車場

耐震

新耐震基準

基準階天井高

2490mm

空室延床面積

23.03坪

最寄駅

情報更新日

2026/02/09

虎ノ門東洋共同ビルのテナント募集中区画

階数 面積 賃料(共益費含む) 保証金 入居可能日 検討リスト 詳細
地下2 23.03坪 応相談(応相談) 応相談
…新着物件

虎ノ門東洋共同ビルのアクセス

虎ノ門東洋共同ビルの物件情報

虎ノ門東洋共同ビル(港区虎ノ門)は虎ノ門駅(B6番出口)から徒歩2分の賃貸オフィスです。
深みのあるベージュカラーの外観で上品なイメージのオフィスビルです。地上9階建て。
石造りのビル入口と二重エントランスにより重厚感があります。ホールは落ち着いたライティングと控えめに置かれた観葉植物などでこちらも品格のある雰囲気です。
1フロアは最大約150坪の規模ですが、募集時期やフロアによって様々なサイズの分割区画がございます。主な設備は個別空調・OAフロア・男女別トイレ・駐車場。エレベーターは2基設置済み。共用部と執務室への動線は複数確保されており、使い勝手が良いでしょう。
虎ノ門駅に程近い当ビル周辺は郵便局が至近である他、飲食店・コンビニ・銀行支店が点在しており、利便性に優れた環境です。
虎ノ門東洋共同ビルは虎ノ門駅(B6番出口)の他に虎ノ門ヒルズ駅(B4番出口)徒歩3分、霞ケ関駅(A12番出口)徒歩6分で利用も可能です。

近隣のエリア・駅から探す