虎ノ門東洋共同ビル 地下2階
物件概要
物件番号
122-00219-50物件名
虎ノ門東洋共同ビル所在地
- 東京都港区虎ノ門1-13-3
- アクセスマップ
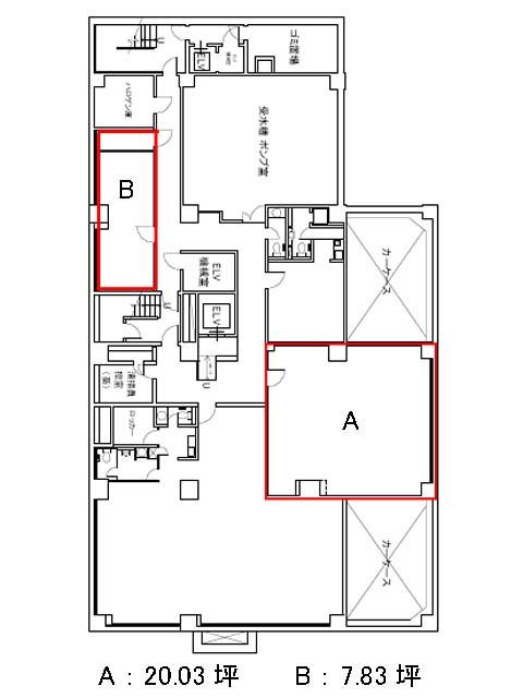
面積
23.03坪賃料(共益費含)
:応相談応相談
入居日
即保証金
応相談礼金
1ケ月更新料
なし償却費
なし竣工
1993年3月構造
SRC規模
地上9階/地下3階トイレ
男女別空調
個別空調エレベーター
有セキュリティ
有駐車場
有耐震
新耐震基準基準階天井高
2490mm空室延床面積
23.03坪情報更新日
2026/02/09虎ノ門東洋共同ビルのテナント募集中区画
| 階数 | 面積 | 賃料(共益費含む) | 保証金 | 入居可能日 | 検討リスト | 詳細 |
|---|---|---|---|---|---|---|
| 地下2 | 23.03坪 | 応相談(応相談) | 応相談 | 即 |
…新着物件
虎ノ門東洋共同ビルのアクセス
虎ノ門東洋共同ビルの物件情報
虎ノ門東洋共同ビル(港区虎ノ門)は虎ノ門駅(B6番出口)から徒歩2分の賃貸オフィスです。深みのあるベージュカラーの外観で上品なイメージのオフィスビルです。地上9階建て。
石造りのビル入口と二重エントランスにより重厚感があります。ホールは落ち着いたライティングと控えめに置かれた観葉植物などでこちらも品格のある雰囲気です。
1フロアは最大約150坪の規模ですが、募集時期やフロアによって様々なサイズの分割区画がございます。主な設備は個別空調・OAフロア・男女別トイレ・駐車場。エレベーターは2基設置済み。共用部と執務室への動線は複数確保されており、使い勝手が良いでしょう。
虎ノ門駅に程近い当ビル周辺は郵便局が至近である他、飲食店・コンビニ・銀行支店が点在しており、利便性に優れた環境です。虎ノ門東洋共同ビルは虎ノ門駅(B6番出口)の他に虎ノ門ヒルズ駅(B4番出口)徒歩3分、霞ケ関駅(A12番出口)徒歩6分で利用も可能です。

