15階は現在募集がありません
3フロア募集区画あり
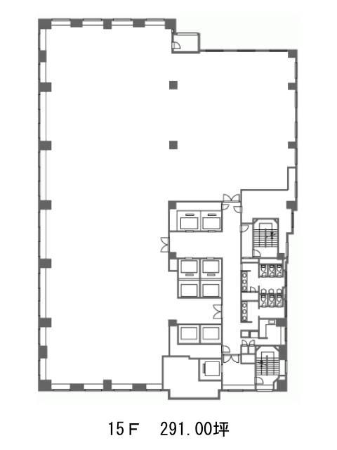
虎ノ門2丁目タワー 15階
物件概要
物件番号
122-00243-185物件名
虎ノ門2丁目タワー所在地
- 東京都港区虎ノ門2-3-17
- アクセスマップ
面積
291.00坪賃料(共益費含)
−入居日
募集終了保証金
−礼金
−更新料
−償却費
−竣工
1999年7月構造
S造規模
地上21階/地下4階トイレ
男女別空調
セントラル+個別空調エレベーター
有セキュリティ
駐車場
有耐震
新耐震基準基準階天井高
2700mm空室延床面積
878.80坪情報更新日
2026/01/09虎ノ門2丁目タワーのテナント募集中区画
| 階数 | 面積 | 賃料(共益費含む) | 保証金 | 入居可能日 | 検討リスト | 詳細 |
|---|---|---|---|---|---|---|
| 13 | 291.00坪 | 応相談(応相談) | 応相談 | 即 | ||
| 14 | 291.00坪 | 応相談(応相談) | 応相談 | 即 | ||
| 16 | 296.80坪 | 応相談(応相談) | 応相談 | 即 |
…新着物件
アクセス
虎ノ門2丁目タワーの物件情報
虎ノ門2丁目タワー(港区虎ノ門)は虎ノ門ヒルズ駅(A2番出口)から徒歩4分の賃貸オフィスです。1999年竣工、地上21階・地下4階建て、基準階面積約300坪の大型オフィスビルです。エントランスホールはとても広々としており、開放感と清潔感があります。周辺にはコンビニや飲食店などが複数あるため、ランチも楽しめるでしょう。またビルの1階にもカフェが入っているため、休憩時などに活用しやすいでしょう。設備面はOAフロア、セントラル空調、室外男女別トイレ、基準階天井高は2,700mmあります。また駐車場も併設しています。虎ノ門2丁目タワーは虎ノ門ヒルズ駅(A2番出口)の他に虎ノ門駅(3番出口)徒歩5分、溜池山王駅(9番出口)徒歩8分で利用も可能です。

