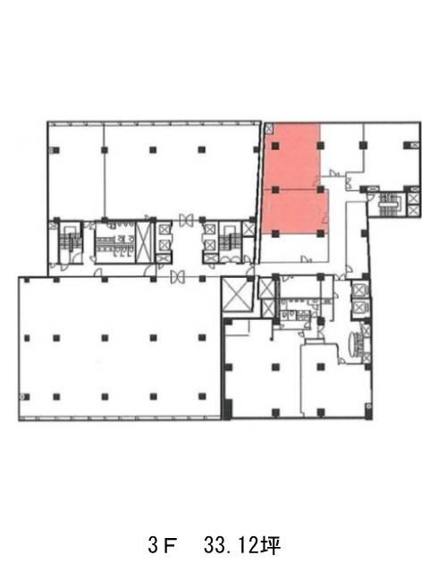
3階は現在募集がありません
4フロア募集区画あり

新虎ノ門実業会館(新館) 3階

前の写真 次の写真

物件概要

物件番号

122-00067-317

物件名

新虎ノ門実業会館(新館)

所在地

面積

33.12坪

賃料(共益費含)


入居日

募集終了

保証金

礼金

更新料

償却費

竣工

1965年6月

構造

SRC

規模

地上9階/地下3階

トイレ

男女別

空調

個別空調

エレベーター

セキュリティ

駐車場

耐震

耐震補強済み

基準階天井高

2400mm

空室延床面積

224.85坪

最寄駅

情報更新日

2025/12/12

新虎ノ門実業会館(新館)のテナント募集中区画

階数 面積 賃料(共益費含む) 保証金 入居可能日 検討リスト 詳細
地下2 27.00坪 応相談(応相談) 応相談
地下1 54.60坪 応相談(応相談) 応相談 相談
8 96.25坪 応相談(応相談) 応相談
9 47.00坪 応相談(応相談) 応相談
…新着物件

アクセス

新虎ノ門実業会館(新館)の物件情報

新虎ノ門実業会館(新館)(港区虎ノ門)は虎ノ門駅(10番出口)から徒歩1分の賃貸オフィスです。
1962年竣工、地上9階 地下3階建、外堀通りに面しており視認性も高いでしょう。外観は全体的にグレーを基調とした色合いで、とてもシンプルなデザインとなっております。エントランスホールは広々としており、とても清潔感があります。周辺にはコンビニや飲食店、郵便局などが複数あるためとても利便性が高いです。ビル内にはOAフロアが備えられており、トイレは男女別となっております。駐車場もあるため、社用車を使う場合も便利です。
新虎ノ門実業会館(新館)は虎ノ門駅(10番出口)の他に霞ケ関駅(C2番出口)徒歩5分、虎ノ門ヒルズ駅(B4番出口)徒歩6分で利用も可能です。

近隣のエリア・駅から探す