5階は現在募集がありません
1フロア募集区画あり

品川駅前港南ビル 5階

前の写真 次の写真

物件概要

物件番号

123-00041-20

物件名

品川駅前港南ビル

所在地

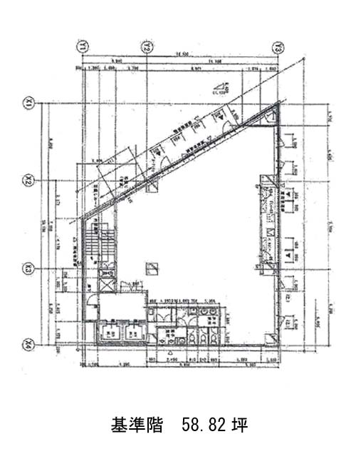
面積

58.82坪

賃料(共益費含)


入居日

募集終了

保証金

礼金

更新料

償却費

竣工

2001年7月

構造

SRC

規模

地上10階/地下1階

トイレ

男女別

空調

個別空調

エレベーター

セキュリティ

駐車場

耐震

新耐震基準

基準階天井高

2700mm

空室延床面積

58.82坪

最寄駅

情報更新日

2026/04/24

品川駅前港南ビルのテナント募集中区画

階数 面積 賃料(共益費含む) 保証金 入居可能日 検討リスト 詳細
8 58.82坪 応相談(応相談) 応相談 2026年9月上旬
…新着物件

品川駅前港南ビルのアクセス

品川駅前港南ビルの物件情報

品川駅前港南ビル(港区港南)は品川駅(港南口)から徒歩2分の賃貸オフィスです。
品川駅前港南ビルは品川駅(港南口)の他に北品川駅(出口)徒歩13分で利用も可能です。

近隣のエリア・駅から探す