8階は現在募集がありません
1フロア募集区画あり

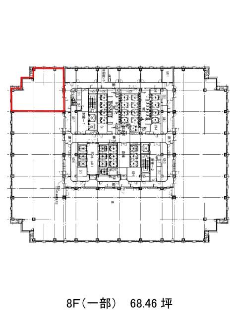
品川グランドセントラルタワー 8階

前の写真 次の写真

物件概要

物件番号

123-00051-260

物件名

品川グランドセントラルタワー

所在地

面積

68.46坪

賃料(共益費含)


入居日

募集終了

保証金

礼金

更新料

償却費

竣工

2003年3月

構造

SRC

規模

地上32階/地下3階

トイレ

男女別

空調

セントラル

エレベーター

セキュリティ

駐車場

耐震

新耐震基準

基準階天井高

2700mm

空室延床面積

34.04坪

最寄駅

情報更新日

2026/03/16

品川グランドセントラルタワーのテナント募集中区画

階数 面積 賃料(共益費含む) 保証金 入居可能日 検討リスト 詳細
9 34.04坪 応相談(応相談) 応相談 2026年5月上旬
…新着物件

品川グランドセントラルタワーのアクセス

品川グランドセントラルタワーの物件情報

品川グランドセントラルタワー(港区港南)は品川駅(港南口)から徒歩7分の賃貸オフィスです。
SRC造地上32階地下3階建、2003年竣工のビルです。白い壁面にずらりと窓ガラスが並びスタイリッシュな外観をしています。フロアの一箇所に共用部が集中し、貸室を効率よく使えるでしょう。セントラル空調・光ケーブル引込済・OAフロア・貸室外の男女別トイレ・EV28基・機械式駐車場459台、と大規模物件ならではの充実した設備仕様をしています。セキュリティは機械警備に加え警備員常駐で事務所は24時間利用できます。
品川グランドセントラルタワーは品川駅(港南口)の他に北品川駅(出口)徒歩10分で利用も可能です。

近隣のエリア・駅から探す