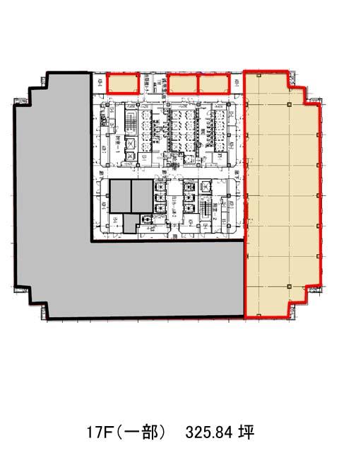
17階は現在募集がありません
品川グランドセントラルタワー 17階
物件概要
品川グランドセントラルタワーのテナント募集中区画
現在、空室がございません。
アクセス
品川グランドセントラルタワーの物件情報
品川グランドセントラルタワー(港区港南)は品川駅(港南口)から徒歩7分の賃貸オフィスです。SRC造地上32階地下3階建、2003年竣工のビルです。白い壁面にずらりと窓ガラスが並びスタイリッシュな外観をしています。フロアの一箇所に共用部が集中し、貸室を効率よく使えるでしょう。セントラル空調・光ケーブル引込済・OAフロア・貸室外の男女別トイレ・EV28基・機械式駐車場459台、と大規模物件ならではの充実した設備仕様をしています。セキュリティは機械警備に加え警備員常駐で事務所は24時間利用できます。品川グランドセントラルタワーは品川駅(港南口)の他に北品川駅(出口)徒歩10分で利用も可能です。

