A-PLACE品川東のテナント募集中区画
| 階数 | 面積 | 賃料(共益費含む) | 保証金 | 入居可能日 | 検討リスト | 詳細 |
|---|---|---|---|---|---|---|
| 5 | 92.15坪 | 応相談(応相談) | 応相談 | 2026年5月上旬 |
…新着物件
A-PLACE品川東のアクセス
A-PLACE品川東の物件情報
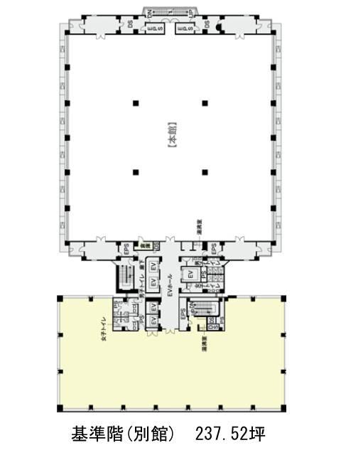
A-PLACE品川東(港区港南)は品川駅(港南口)から徒歩8分の賃貸オフィスです。1985年竣工、地上7階地下1階建のビルです。2014年に大規模リニューアルを経て、築年数を感じさせない清潔感があります。貸室は面積のバリエーションが豊富で、多様な規模のビジネスに対応できるでしょう。間取りは、長方形の無柱空間で配置のしやすい形状をしています。セキュリティは機械警備・有人警備の併用となります。天井高2800㎜で開放感のある室内となるでしょう。EV・個別空調・OAフロア・駐車場・男女別トイレといった設備が揃っています。

