5階は現在募集がありません
1フロア募集区画あり

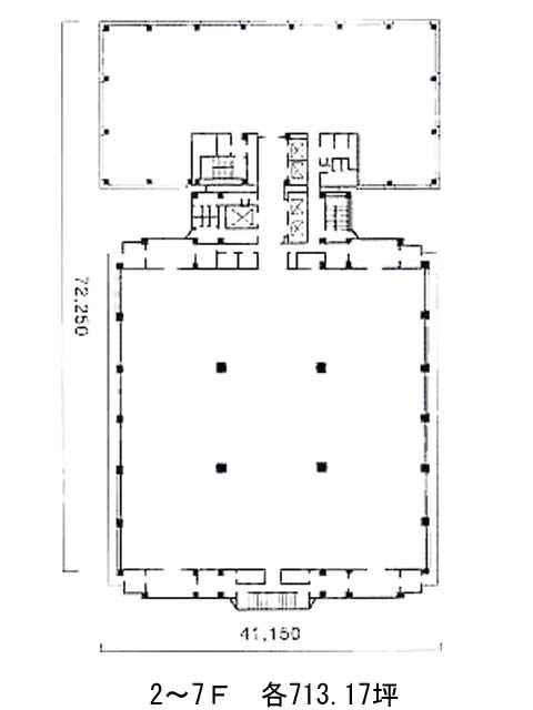
A-PLACE品川東 5階

前の写真 次の写真

物件概要

物件番号

123-00054-120

物件名

A-PLACE品川東

所在地

面積

713.17坪

賃料(共益費含)


入居日

募集終了

保証金

礼金

更新料

償却費

竣工

1985年9月

構造

SRC

規模

地上7階/地下1階

トイレ

男女別

空調

個別空調

エレベーター

セキュリティ

駐車場

耐震

新耐震基準

基準階天井高

2800mm

空室延床面積

92.15坪

最寄駅

情報更新日

2026/04/02

A-PLACE品川東のテナント募集中区画

階数 面積 賃料(共益費含む) 保証金 入居可能日 検討リスト 詳細
5 92.15坪 応相談(応相談) 応相談 2026年5月上旬
…新着物件

A-PLACE品川東のアクセス

A-PLACE品川東の物件情報

A-PLACE品川東(港区港南)は品川駅(港南口)から徒歩8分の賃貸オフィスです。
1985年竣工、地上7階地下1階建のビルです。2014年に大規模リニューアルを経て、築年数を感じさせない清潔感があります。貸室は面積のバリエーションが豊富で、多様な規模のビジネスに対応できるでしょう。間取りは、長方形の無柱空間で配置のしやすい形状をしています。セキュリティは機械警備・有人警備の併用となります。天井高2800㎜で開放感のある室内となるでしょう。EV・個別空調・OAフロア・駐車場・男女別トイレといった設備が揃っています。

近隣のエリア・駅から探す