3階は現在募集がありません
品川シティビル 3階
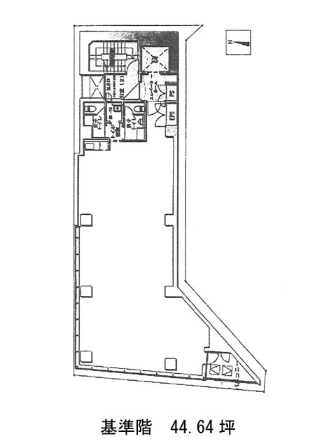
物件概要
品川シティビルのテナント募集中区画
現在、空室がございません。
アクセス
品川シティビルの物件情報
品川シティビル(港区港南)は北品川駅(出口)から徒歩10分の賃貸オフィスです。品川シティビルは北品川駅(出口)の他に品川駅(港南口)徒歩11分、天王洲アイル駅(中央口)徒歩11分で利用も可能です。

