3階は現在募集がありません
PMO品川 3階
物件概要
PMO品川のテナント募集中区画
現在、空室がございません。
アクセス
PMO品川の物件情報
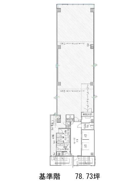
PMO品川(港区港南)は品川駅(港南口)から徒歩4分の賃貸オフィスです。2023年7月竣工、地上10階建の新築ビルです。ミラーガラス張りの外観はすっきりとスタイリッシュです。78坪程度の貸室が揃い、中規模の事務所をお探しの方に良いでしょう。間取りは長方形の無柱空間で、メリットとしてオフィス家具の配置がしやすいでしょう。EV2基・自動調光・システム天井・フロアを4分割する個別空調・LED照明といった充実の設備仕様です。天井2750㎜で明るく開放感のある室内となるでしょう。PMO品川は品川駅(港南口)の他に北品川駅(出口)徒歩14分で利用も可能です。

