高輪エンパイヤビル 4階
物件概要
物件番号
124-00043-60物件名
高輪エンパイヤビル所在地
- 東京都港区高輪3-24-18
- アクセスマップ
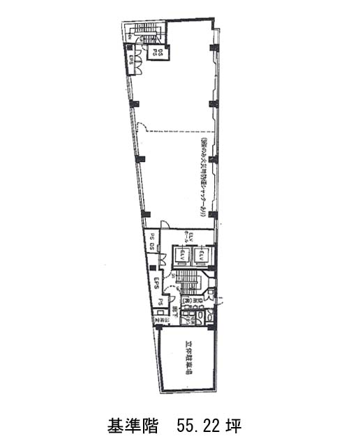
面積
55.22坪賃料(共益費含)
月額1,700,776円(30,800円/坪)
入居日
2026年7月上旬保証金
15,461,600円礼金
1ケ月更新料
なし償却費
なし竣工
1991年4月構造
SRC規模
地上10階/地下1階トイレ
男女別空調
個別空調エレベーター
有セキュリティ
駐車場
有耐震
新耐震基準基準階天井高
空室延床面積
100.70坪情報更新日
2026/01/30高輪エンパイヤビルのテナント募集中区画
| 階数 | 面積 | 賃料(共益費含む) | 保証金 | 入居可能日 | 検討リスト | 詳細 |
|---|---|---|---|---|---|---|
| 地下1 | 45.48坪 | 1,400,784円/月(30,800円/坪) | 1,273万円 | 2026年4月上旬 | ||
| 4 | 55.22坪 | 1,700,776円/月(30,800円/坪) | 1,546万円 | 2026年7月上旬 |
…新着物件
高輪エンパイヤビルのアクセス
高輪エンパイヤビルの物件情報
高輪エンパイヤビル(港区高輪)は品川駅(出口)から徒歩5分の賃貸オフィスです。高輪エンパイヤビルは品川駅(出口)の他に高輪ゲートウェイ駅(出口)徒歩7分、泉岳寺駅(A1番出口)徒歩7分で利用も可能です。

