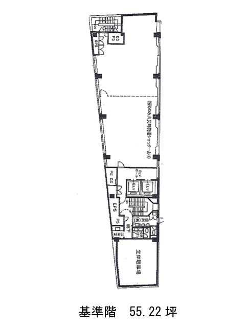
高輪エンパイヤビルのテナント募集中区画
| 階数 | 面積 | 賃料(共益費含む) | 保証金 | 入居可能日 | 検討リスト | 詳細 |
|---|---|---|---|---|---|---|
| 地下1 | 45.48坪 | 1,400,784円/月(30,800円/坪) | 1,273万円 | 2026年4月上旬 | ||
| 4 | 55.22坪 | 1,700,776円/月(30,800円/坪) | 1,546万円 | 2026年7月上旬 |
…新着物件
アクセス
高輪エンパイヤビルの物件情報
高輪エンパイヤビル(港区高輪)は品川駅(出口)から徒歩5分の賃貸オフィスです。高輪エンパイヤビルは品川駅(出口)の他に高輪ゲートウェイ駅(出口)徒歩7分、泉岳寺駅(A1番出口)徒歩7分で利用も可能です。

