3階は現在募集がありません
TAMA WOODY GATE MITA/TWG三田 3階
物件概要
物件番号
125-00104-40物件名
TAMA WOODY GATE MITA/TWG三田所在地
- 東京都港区三田3-3-8
- アクセスマップ
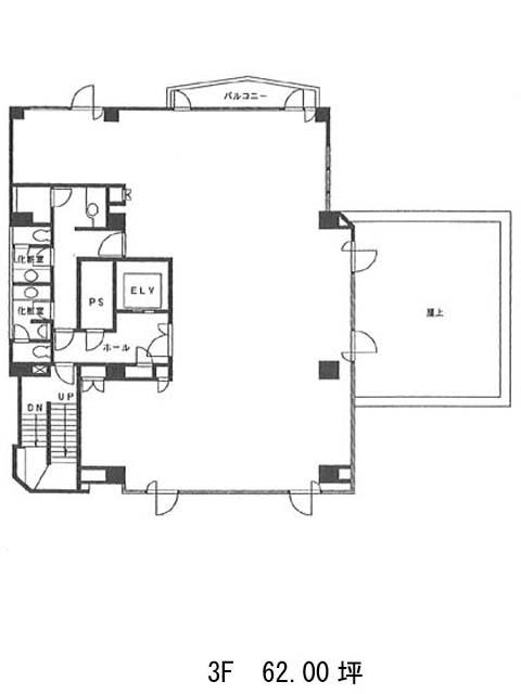
面積
62.00坪賃料(共益費含)
−入居日
募集終了保証金
−礼金
−更新料
−償却費
−竣工
1992年10月構造
SRC規模
地上9階/地下1階トイレ
男女別空調
個別空調エレベーター
有セキュリティ
有駐車場
有耐震
新耐震基準基準階天井高
2500mm空室延床面積
−情報更新日
2025/04/16TAMA WOODY GATE MITA/TWG三田のテナント募集中区画
現在、空室がございません。
アクセス
TAMA WOODY GATE MITA/TWG三田の物件情報
TAMA WOODY GATE MITA/TWG三田(港区三田)は三田駅(A3番出口)から徒歩5分の賃貸オフィスです。外観は光沢のあるブルーグレーのタイル張り。エントランス周りはグレーの石造りでグレード感を高めています。4階までの貸室は50~70坪の規模、5階以上は40坪弱の規模。主な設備は個別空調、OAフロア、男女別トイレ、機械警備です。
ビルの向かいにコンビニがあるほか、前面通り沿いには飲食店が点在しています。TAMA WOODY GATE MITA/TWG三田は三田駅(A3番出口)の他に田町駅(三田口)徒歩7分、白金高輪駅(2番出口)徒歩13分で利用も可能です。

