3階は現在募集がありません
FBR三田ビル 3階
物件概要
FBR三田ビルのテナント募集中区画
現在、空室がございません。
アクセス
FBR三田ビルの物件情報
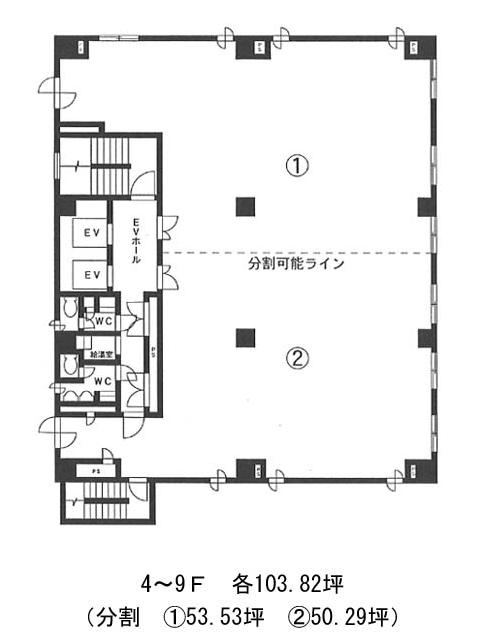
FBR三田ビル(港区三田)は白金高輪駅(2番出口)から徒歩9分の賃貸オフィスです。1993年竣工。2006年にはリニューアル工事を実施。外観は全体的にシックな色合いで、スタリッシュなデザインをしております。エントランスホールやエレベーターホールは清潔感があり、落ち着いた空間となっております。ビル内には、OAフロアが備えられており、トイレは男女別、セキュリティは機械警備を導入しております。また、新耐震基準であるため、安心です。駐車場を完備しているため、社用車を使う場合も便利です。また周辺にはコンビニや飲食店、郵便局などがあるため、利便性が高いです。FBR三田ビルは白金高輪駅(2番出口)の他に三田駅(A3番出口)徒歩10分、田町駅(三田口)徒歩11分で利用も可能です。

