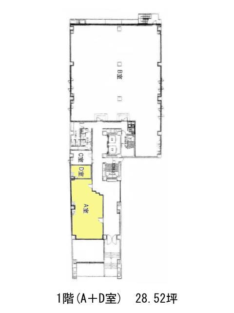
三田三好ビルのテナント募集中区画
| 階数 | 面積 | 賃料(共益費含む) | 保証金 | 入居可能日 | 検討リスト | 詳細 |
|---|---|---|---|---|---|---|
| 2 | 69.51坪 | 1,299,837円/月(18,700円/坪) | 1,418万円 | 2026年5月上旬 | ||
| 3 | 69.51坪 | 1,299,837円/月(18,700円/坪) | 1,418万円 | 2026年5月上旬 |
…新着物件
三田三好ビルのアクセス
三田三好ビルの物件情報
三田三好ビル(港区三田)は泉岳寺駅(A4番出口)から徒歩3分の賃貸オフィスです。三田三好ビルは泉岳寺駅(A4番出口)の他に三田駅(A1番出口)徒歩10分、高輪ゲートウェイ駅(出口)徒歩10分で利用も可能です。

