6階 6-1は現在募集がありません
万代三田ビル 6階 6-1
物件概要
万代三田ビルのテナント募集中区画
現在、空室がございません。
アクセス
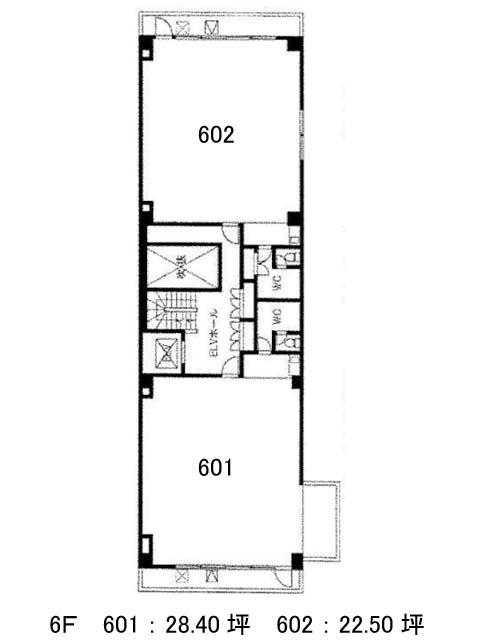
万代三田ビルの物件情報
万代三田ビル(港区三田)は三田駅(A3番出口)から徒歩6分の賃貸オフィスです。万代三田ビルは三田駅(A3番出口)の他に田町駅(三田口)徒歩8分、白金高輪駅(2番出口)徒歩13分で利用も可能です。

