プレクスビルディング 6階
物件概要
物件番号
125-00064-60物件名
プレクスビルディング所在地
- 東京都港区三田3-12-17
- アクセスマップ
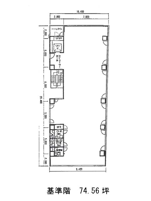
面積
74.56坪賃料(共益費含)
月額1,189,232円(15,950円/坪)
入居日
2026年5月上旬保証金
5,144,640円礼金
1ケ月更新料
新1ケ月償却費
10%竣工
1991年9月構造
S造規模
地上10階トイレ
男女別空調
個別空調エレベーター
有セキュリティ
有駐車場
無耐震
新耐震基準基準階天井高
2400mm空室延床面積
223.68坪情報更新日
2026/02/19プレクスビルディングのテナント募集中区画
| 階数 | 面積 | 賃料(共益費含む) | 保証金 | 入居可能日 | 検討リスト | 詳細 |
|---|---|---|---|---|---|---|
| 3 | 74.56坪 | 1,189,232円/月(15,950円/坪) | 514万円 | 2026年6月上旬 | ||
| 4 | 74.56坪 | 1,189,232円/月(15,950円/坪) | 514万円 | 2026年5月上旬 | ||
| 6 | 74.56坪 | 1,189,232円/月(15,950円/坪) | 514万円 | 2026年5月上旬 |
…新着物件
プレクスビルディングのアクセス
プレクスビルディングの物件情報
プレクスビルディング(港区三田)は泉岳寺駅(A4番出口)から徒歩6分の賃貸オフィスです。S造10階建、1991年竣工のビルです。角地に建ち、視認性が高いでしょう。赤茶色の外壁で、温かみのある外観をしています。二面採光で、大きな窓から十分な明かりがとれるでしょう。貸室にダイレクトインのEV・個別空調・機械警備・バルコニー・男女別トイレといった設備仕様で、LED導入済・省エネ空調と環境に配慮されています。間取りは長方形で、柱が中央になくすっきりとした形状をしています。オフィス家具のレイアウトがしやすいでしょう。プレクスビルディングは泉岳寺駅(A4番出口)の他に三田駅(A1番出口)徒歩7分、田町駅(三田口)徒歩9分で利用も可能です。

