9階は現在募集がありません
プレクスビルディング 9階
物件概要
プレクスビルディングのテナント募集中区画
現在、空室がございません。
アクセス
プレクスビルディングの物件情報
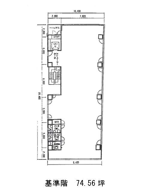
プレクスビルディング(港区三田)は泉岳寺駅(A4番出口)から徒歩6分の賃貸オフィスです。S造10階建、1991年竣工のビルです。角地に建ち、視認性が高いでしょう。赤茶色の外壁で、温かみのある外観をしています。二面採光で、大きな窓から十分な明かりがとれるでしょう。貸室にダイレクトインのEV・個別空調・機械警備・バルコニー・男女別トイレといった設備仕様で、LED導入済・省エネ空調と環境に配慮されています。間取りは長方形で、柱が中央になくすっきりとした形状をしています。オフィス家具のレイアウトがしやすいでしょう。プレクスビルディングは泉岳寺駅(A4番出口)の他に三田駅(A1番出口)徒歩7分、田町駅(三田口)徒歩9分で利用も可能です。

