ACN田町ビルのテナント募集中区画
| 階数 | 面積 | 賃料(共益費含む) | 保証金 | 入居可能日 | 検討リスト | 詳細 |
|---|---|---|---|---|---|---|
| 8 | 149.48坪 | 応相談(応相談) | 応相談 | 即 | ||
| 9 | 149.48坪 | 応相談(応相談) | 応相談 | 2026年3月上旬 |
…新着物件
アクセス
ACN田町ビルの物件情報
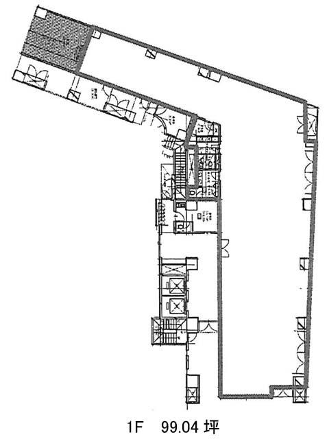
ACN田町ビル(港区芝)は三田駅(A9番出口)から徒歩3分の賃貸オフィスです。地上10階地下1階建、1990年竣工のビルです。ガラス面を白い壁面で縁取った、スタイリッシュな外観。2021年にリニューアルが済んでいます。内装はモノトーンでまとめられ、清潔感があります。間取りは特徴的な形状ですが、支柱が中央に無く使い勝手がよいでしょう。EV2基・駐車場・個別空調・貸室内の男女別トイレ・OAフロアといった設備仕様で、EVは室内にダイレクトインとなります。オフィス街に建ち、徒歩圏内にコンビニや飲食店等、ビジネスパーソンに便利な店舗が揃います。ACN田町ビルは三田駅(A9番出口)の他に田町駅(三田口)徒歩7分、芝公園駅(A1番出口)徒歩8分で利用も可能です。

