3階は現在募集がありません
オーキッドプレイス芝4丁目ビル 3階
物件概要
オーキッドプレイス芝4丁目ビルのテナント募集中区画
現在、空室がございません。
アクセス
オーキッドプレイス芝4丁目ビルの物件情報
オーキッドプレイス芝4丁目ビル(港区芝)は三田駅(A9番出口)から徒歩5分の賃貸オフィスです。外観は、存在感のある赤みを帯びた石張りとミラーガラスのコンビネーション。見る角度によって表情を変えるファサードが、洗練された印象を与えます。大通りに面しており、建物の前面は開けています。
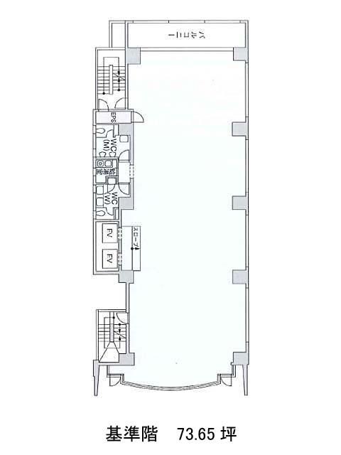
基準階は約74坪の長方形区画。柱は外周にまとめられているため、フロア全体を無駄なく使える点も大きなポイントです。さらにOAフロア仕様となっており、レイアウトや配線の自由度も高く、多様な業種・規模の企業にフィットする設計です。
水回り(トイレ・給湯室)は専有部内に設置されており、業務の合間にも気兼ねなく利用できます。エレベーターは2基完備。
周辺にはコンビニや飲食店がほどよく点在しており、必要なときにさっと利用できる利便性も備えています。オーキッドプレイス芝4丁目ビルは三田駅(A9番出口)の他に田町駅(三田口)徒歩8分、芝公園駅(A1番出口)徒歩9分で利用も可能です。

