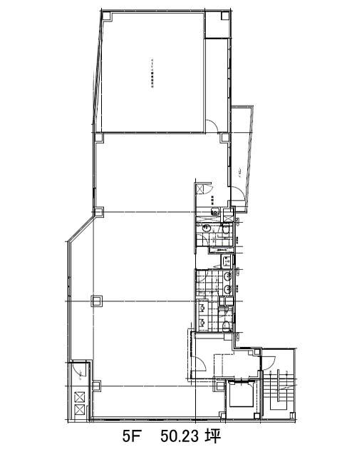
ACN芝プラザビル 5階
物件概要
物件番号
126-00134-30物件名
ACN芝プラザビル所在地
- 東京都港区芝4-5-11
- アクセスマップ
面積
50.23坪賃料(共益費含)
:応相談応相談
入居日
2026年5月上旬保証金
応相談礼金
なし更新料
新1ケ月償却費
1ケ月竣工
1983年11月構造
SRC規模
地上10階/地下1階トイレ
男女別空調
個別空調エレベーター
有セキュリティ
有駐車場
有耐震
新耐震基準基準階天井高
2400mm空室延床面積
167.84坪情報更新日
2026/01/19ACN芝プラザビルのテナント募集中区画
| 階数 | 面積 | 賃料(共益費含む) | 保証金 | 入居可能日 | 検討リスト | 詳細 |
|---|---|---|---|---|---|---|
| 4 | 50.23坪 | 応相談(応相談) | 応相談 | 即 | ||
| 5 | 50.23坪 | 応相談(応相談) | 応相談 | 2026年5月上旬 | ||
| 10 | 67.38坪 | 応相談(応相談) | 応相談 | 即 |
…新着物件
アクセス
ACN芝プラザビルの物件情報
ACN芝プラザビル(港区芝)は三田駅(A9番出口)から徒歩3分の賃貸オフィスです。1984年竣工、地上10階建て、石造りの外壁で重厚感のあるオフィスビルです。2007年にはリニューアル工事を実施しており、メンテナンスが行き届いた建物となっております。基準階は約60坪、ほぼ長方形の整形オフィスとなっておりますので、レイアウトはしやすいでしょう。ビル内のトイレは男女別となっており、セキュリティは機械警備を導入しております。耐震性も新耐震基準であるため、安心です。駐車場を完備してあるため、車を利用する際も便利な環境となっております。周辺にはコンビニや飲食店、郵便局、銀行などがある為、利便性が高いです。ACN芝プラザビルは三田駅(A9番出口)の他に田町駅(三田口)徒歩7分、芝公園駅(A1番出口)徒歩8分で利用も可能です。

