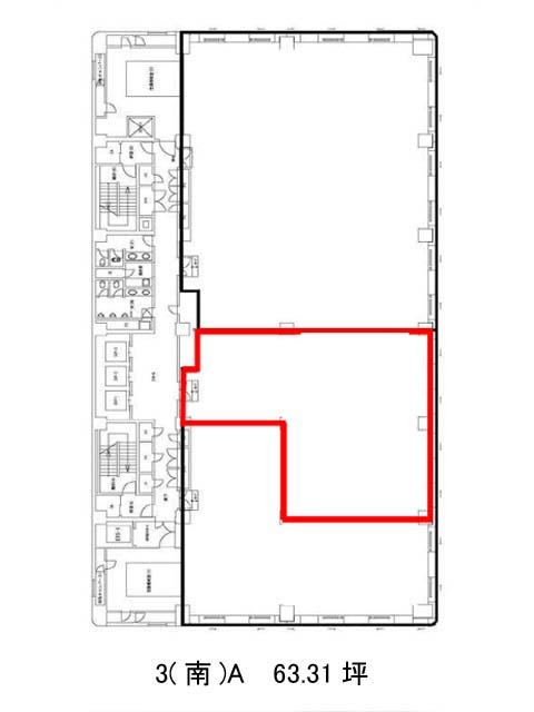
3階 3南Aは現在募集がありません
1フロア募集区画あり
芝公園NDビル/サニーポート芝 3階 3南A
物件概要
物件番号
126-00137-242物件名
芝公園NDビル/サニーポート芝所在地
- 東京都港区芝2-5-10
- アクセスマップ
面積
63.31坪賃料(共益費含)
−入居日
募集終了保証金
−礼金
−更新料
−償却費
−竣工
1992年8月構造
SRC規模
地上11階/地下2階トイレ
男女別空調
セントラル+個別空調エレベーター
有セキュリティ
有駐車場
有耐震
新耐震基準基準階天井高
2550mm空室延床面積
26.41坪情報更新日
2026/03/03芝公園NDビル/サニーポート芝のテナント募集中区画
| 階数 | 面積 | 賃料(共益費含む) | 保証金 | 入居可能日 | 検討リスト | 詳細 |
|---|---|---|---|---|---|---|
| 10 | 26.41坪 | 341,000円/月(12,911円/坪) | 93万円 | 即 |
…新着物件
芝公園NDビル/サニーポート芝のアクセス
芝公園NDビル/サニーポート芝の物件情報
芝公園NDビル/サニーポート芝(港区芝)は芝公園駅(A1番出口)から徒歩5分の賃貸オフィスです。1992年竣工、地上11階地下2階建ビルです。1階にコンビニが入り、目印となるでしょう。共用部はオフホワイトの天然石を使用し明るく高級感のある内装をしています。長方形の間取りは、出入口が4箇所あり動線の自由度が高まるでしょう。設備仕様としてEV4基・駐車場・非常階段2箇所・貸室外の男女別トイレがあり、空調は個別空調とセントラルの併用となります。機械警備に加え、24時間常駐管理といった安心のセキュリティです。芝公園NDビル/サニーポート芝は芝公園駅(A1番出口)の他に大門駅(A6番出口)徒歩8分、浜松町駅(南口1)徒歩9分で利用も可能です。

