4階は現在募集がありません
2フロア募集区画あり

オフィスニューガイア浜松町No.17 4階

前の写真 次の写真

物件概要

物件番号

126-00147-20

物件名

オフィスニューガイア浜松町No.17

所在地

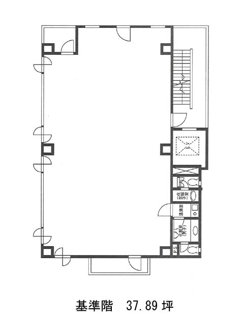
面積

37.89坪

賃料(共益費含)


入居日

募集終了

保証金

礼金

更新料

償却費

竣工

1993年11月

構造

S造

規模

地上11階

トイレ

男女別

空調

個別空調

エレベーター

セキュリティ

駐車場

耐震

新耐震基準

基準階天井高

空室延床面積

75.78坪

最寄駅

情報更新日

2026/02/26

オフィスニューガイア浜松町No.17のテナント募集中区画

階数 面積 賃料(共益費含む) 保証金 入居可能日 検討リスト 詳細
9 37.89坪 500,023円/月(13,196円/坪) 272万円 2026年4月
11 37.89坪 990,000円/月(26,128円/坪) 90万円
…新着物件

オフィスニューガイア浜松町No.17のアクセス

オフィスニューガイア浜松町No.17の物件情報

オフィスニューガイア浜松町No.17(港区芝)は三田駅(A9番出口)から徒歩7分の賃貸オフィスです。
オフィスニューガイア浜松町No.17は三田駅(A9番出口)の他に芝公園駅(A1番出口)徒歩9分、日の出駅(東口)徒歩9分で利用も可能です。

近隣のエリア・駅から探す