5階 Bは現在募集がありません
2フロア募集区画あり

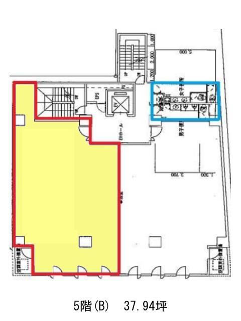
Aフロント田町ビル 5階 B

前の写真 次の写真

物件概要

物件番号

126-00177-206

物件名

Aフロント田町ビル

所在地

面積

37.94坪

賃料(共益費含)


入居日

募集終了

保証金

礼金

更新料

償却費

竣工

1984年4月

構造

SRC

規模

地上10階/地下1階

トイレ

男女別

空調

個別空調

エレベーター

セキュリティ

駐車場

耐震

新耐震基準

基準階天井高

2500mm

空室延床面積

71.89坪

最寄駅

情報更新日

2026/04/17

Aフロント田町ビルのテナント募集中区画

階数 面積 賃料(共益費含む) 保証金 入居可能日 検討リスト 詳細
2 36.44坪 721,512円/月(19,800円/坪) 655万円 2026年6月上旬
2 35.45坪 701,910円/月(19,800円/坪) 638万円 2026年6月上旬
…新着物件

Aフロント田町ビルのアクセス

Aフロント田町ビルの物件情報

Aフロント田町ビル(港区芝)は三田駅(A9番出口)から徒歩5分の賃貸オフィスです。
外観はベージュタイル張りで、どこかホテルライクなデザインが端正な印象を与えます。エントランスは間接照明が施され、落ち着いた雰囲気に仕上がっており、来訪者の第一印象にも配慮されたつくりです。
基準階は約70坪。時期によっては小規模な分割募集も行っています(※詳細はその都度ご確認ください)。
水回り(男女別トイレ・給湯室)は室外共用部に集約。2006年には大規模リニューアルが実施され、設備や内装のクオリティも良好。OAフロアや個別空調、機械警備、駐車場など、日々の業務に必要な機能はしっかりと整っています。
Aフロント田町ビルは三田駅(A9番出口)の他に田町駅(三田口)徒歩8分、芝公園駅(A1番出口)徒歩9分で利用も可能です。

近隣のエリア・駅から探す