2階は現在募集がありません
1フロア募集区画あり

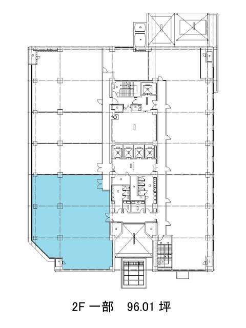
JRE芝2丁目大門ビルディング 2階

前の写真 次の写真

物件概要

物件番号

126-00181-120

物件名

JRE芝2丁目大門ビルディング

所在地

面積

96.01坪

賃料(共益費含)


入居日

募集終了

保証金

礼金

更新料

償却費

竣工

1984年3月

構造

SRC

規模

地上8階/地下2階

トイレ

男女別

空調

個別空調

エレベーター

セキュリティ

駐車場

耐震

新耐震基準

基準階天井高

2600mm

空室延床面積

43.51坪

最寄駅

情報更新日

2026/05/08

JRE芝2丁目大門ビルディングのテナント募集中区画

階数 面積 賃料(共益費含む) 保証金 入居可能日 検討リスト 詳細
6 43.51坪 応相談(応相談) 応相談 2026年10月上旬
…新着物件

JRE芝2丁目大門ビルディングのアクセス

JRE芝2丁目大門ビルディングの物件情報

JRE芝2丁目大門ビルディング(港区芝)は芝公園駅(A1番出口)から徒歩7分の賃貸オフィスです。
1984年竣工の新耐震基準を満たしたオフィスビルです。外観は全体的にタイル張りとなっており、シンプルなデザインとなっております。エントランスホールやエレベーターホールは広々としており、開放感と清潔感を感じられます。ビル内にはOAフロアが備えられており、トイレは男女別、セキュリティは機械警備を導入しております。駐車場を備えておりますので、社用車を使う場合も便利です。また周辺にはコンビニや飲食店などがあるため、ランチも楽しめるでしょう。
JRE芝2丁目大門ビルディングは芝公園駅(A1番出口)の他に大門駅(A3番出口)徒歩7分、浜松町駅(南口1)徒歩8分で利用も可能です。

近隣のエリア・駅から探す