三田UTビルのテナント募集中区画
| 階数 | 面積 | 賃料(共益費含む) | 保証金 | 入居可能日 | 検討リスト | 詳細 |
|---|---|---|---|---|---|---|
| 2 | 91.77坪 | 応相談(応相談) | 応相談 | 2026年4月上旬 |
…新着物件
アクセス
三田UTビルの物件情報
三田UTビル(港区芝)は三田駅(A8番出口)から徒歩6分の賃貸オフィスです。白いタイル張りの外観は、シンプルで飽きのこない佇まいです。角地に立地しており、採光の取りやすさも期待できます。駅からは程よく距離があるため周囲は落ち着いた環境。近隣にコンビニエンスストアがあるため、ちょっとした買い物に便利でしょう。
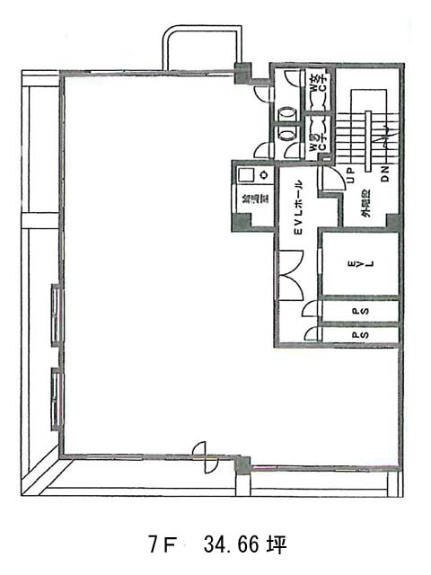
1フロアは約90坪を最大とし、60坪台の中規模がメイン。水回りは共用部に設置されているため、貸室内を効率よく活用できる点もポイントです。
設備面ではOAフロアや機械警備を備え、駐車場の利用も可能。シンプルな構造ながら、実用性をしっかり備えたビルです。三田UTビルは三田駅(A8番出口)の他に芝公園駅(A1番出口)徒歩8分、赤羽橋駅(赤羽橋口)徒歩8分で利用も可能です。

