ヒキタカ芝公園ビルのテナント募集中区画
| 階数 | 面積 | 賃料(共益費含む) | 保証金 | 入居可能日 | 検討リスト | 詳細 |
|---|---|---|---|---|---|---|
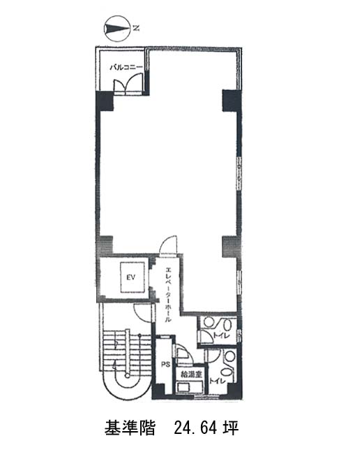
| 9 | 24.64坪 | 528,528円/月(21,450円/坪) | 192万円 | 2026年3月 |
…新着物件
アクセス
ヒキタカ芝公園ビルの物件情報
ヒキタカ芝公園ビル(港区芝)は赤羽橋駅(赤羽橋口)から徒歩3分の賃貸オフィスです。ヒキタカ芝公園ビルは赤羽橋駅(赤羽橋口)の他に芝公園駅(A2番出口)徒歩7分、麻布十番駅(3番出口)徒歩11分で利用も可能です。

