ヒキタカ芝公園ビル 9階
物件概要
物件番号
126-00225-80物件名
ヒキタカ芝公園ビル所在地
- 東京都港区芝3-15-14
- アクセスマップ
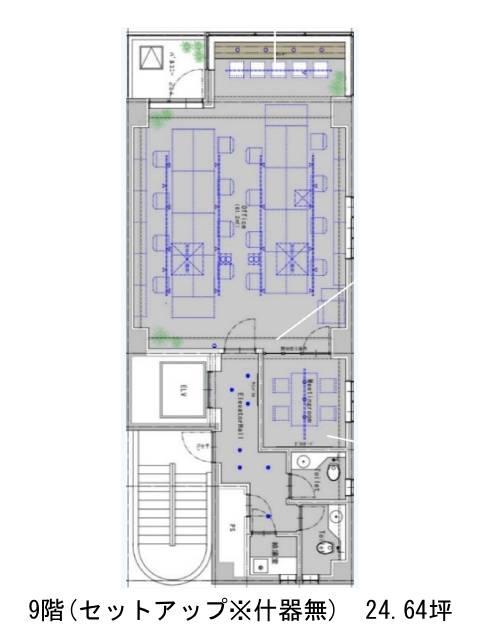
面積
24.64坪賃料(共益費含)
月額487,872円(19,800円/坪)
入居日
2026年3月上旬保証金
1,774,080円礼金
なし更新料
新1ケ月償却費
1ケ月竣工
1988年12月構造
SRC規模
地上9階/地下1階トイレ
男女別空調
エレベーター
有セキュリティ
駐車場
無耐震
新耐震基準基準階天井高
空室延床面積
24.64坪情報更新日
2026/01/29ヒキタカ芝公園ビルのテナント募集中区画
| 階数 | 面積 | 賃料(共益費含む) | 保証金 | 入居可能日 | 検討リスト | 詳細 |
|---|---|---|---|---|---|---|
| 9 | 24.64坪 | 487,872円/月(19,800円/坪) | 177万円 | 2026年3月上旬 |
…新着物件
アクセス
ヒキタカ芝公園ビルの物件情報
ヒキタカ芝公園ビル(港区芝)は赤羽橋駅(赤羽橋口)から徒歩3分の賃貸オフィスです。ヒキタカ芝公園ビルは赤羽橋駅(赤羽橋口)の他に芝公園駅(A2番出口)徒歩7分、麻布十番駅(3番出口)徒歩11分で利用も可能です。

