いちご三田ビルのテナント募集中区画
| 階数 | 面積 | 賃料(共益費含む) | 保証金 | 入居可能日 | 検討リスト | 詳細 |
|---|---|---|---|---|---|---|
| 3 | 169.53坪 | 応相談(応相談) | 応相談 | 即 |
…新着物件
いちご三田ビルのアクセス
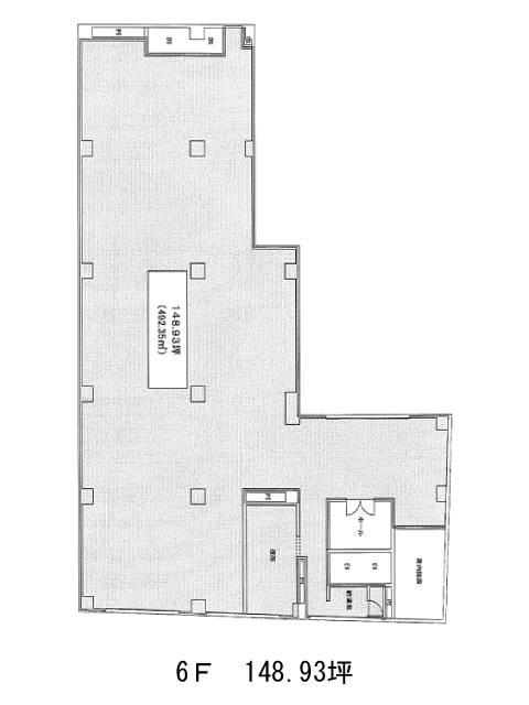
いちご三田ビルの物件情報
いちご三田ビル(港区芝)は三田駅(A8番出口)から徒歩6分の賃貸オフィスです。1982年竣工。1988年には全面リニューアル工事を実施。外観はホワイトと淡いブラウンの2色使いで特徴的なデザインが印象的です。エントランスホールやエレベーターホールは清潔感があり、落ち着いた空間となっております。ビル内にはOAフロアが備えられており、トイレは男女別となっております。セキュリティは機械警備を導入しているため、安心です。駐車場も完備してあるため、社用車を使う場合も便利です。また周辺にはコンビニや飲食店などがあるため、ランチを楽しめるでしょう。いちご三田ビルは三田駅(A8番出口)の他に田町駅(三田口)徒歩8分、赤羽橋駅(赤羽橋口)徒歩9分で利用も可能です。

