8階は現在募集がありません
1フロア募集区画あり

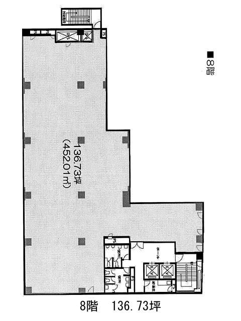
いちご三田ビル 8階

前の写真 次の写真

物件概要

物件番号

126-00232-70

物件名

いちご三田ビル

所在地

面積

136.73坪

賃料(共益費含)


入居日

募集終了

保証金

礼金

更新料

償却費

竣工

1982年7月

構造

SRC

規模

地上9階/地下1階

トイレ

男女別

空調

個別空調

エレベーター

セキュリティ

駐車場

耐震

耐震補強済み

基準階天井高

2500mm

空室延床面積

169.53坪

最寄駅

情報更新日

2026/01/14

いちご三田ビルのテナント募集中区画

階数 面積 賃料(共益費含む) 保証金 入居可能日 検討リスト 詳細
3 169.53坪 応相談(応相談) 応相談 2026年2月上旬
…新着物件

アクセス

いちご三田ビルの物件情報

いちご三田ビル(港区芝)は三田駅(A8番出口)から徒歩6分の賃貸オフィスです。
1982年竣工。1988年には全面リニューアル工事を実施。外観はホワイトと淡いブラウンの2色使いで特徴的なデザインが印象的です。エントランスホールやエレベーターホールは清潔感があり、落ち着いた空間となっております。ビル内にはOAフロアが備えられており、トイレは男女別となっております。セキュリティは機械警備を導入しているため、安心です。駐車場も完備してあるため、社用車を使う場合も便利です。また周辺にはコンビニや飲食店などがあるため、ランチを楽しめるでしょう。
いちご三田ビルは三田駅(A8番出口)の他に田町駅(三田口)徒歩8分、赤羽橋駅(赤羽橋口)徒歩9分で利用も可能です。

近隣のエリア・駅から探す