1階は現在募集がありません
2フロア募集区画あり

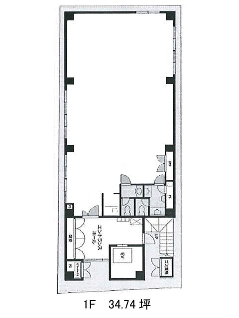
VORT芝公園Ⅱ 1階

前の写真 次の写真

物件概要

物件番号

126-00271-10

物件名

VORT芝公園Ⅱ

所在地

面積

34.74坪

賃料(共益費含)


入居日

募集終了

保証金

礼金

更新料

償却費

竣工

1993年3月

構造

S造

規模

地上9階

トイレ

男女別

空調

個別空調

エレベーター

セキュリティ

駐車場

耐震

新耐震基準

基準階天井高

2420mm

空室延床面積

76.80坪

最寄駅

情報更新日

2026/02/06

VORT芝公園Ⅱのテナント募集中区画

階数 面積 賃料(共益費含む) 保証金 入居可能日 検討リスト 詳細
4 38.40坪 応相談(応相談) 応相談 2026年7月下旬
5 38.40坪 応相談(応相談) 応相談 2026年4月上旬
…新着物件

VORT芝公園Ⅱのアクセス

VORT芝公園Ⅱの物件情報

VORT芝公園Ⅱ(港区芝)は芝公園駅(A1番出口)から徒歩7分の賃貸オフィスです。
VORT芝公園Ⅱは芝公園駅(A1番出口)の他に大門駅(A3番出口)徒歩7分、浜松町駅(南口1)徒歩8分で利用も可能です。

近隣のエリア・駅から探す