奥山ビルのテナント募集中区画
| 階数 | 面積 | 賃料(共益費含む) | 保証金 | 入居可能日 | 検討リスト | 詳細 |
|---|---|---|---|---|---|---|
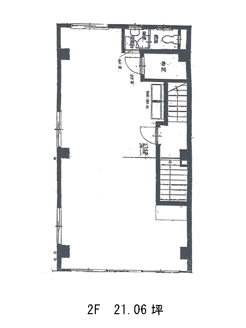
| 2 | 23.74坪 | 330,000円/月(13,900円/坪) | 120万円 | 即 |
…新着物件
奥山ビルのアクセス
奥山ビルの物件情報
奥山ビル(港区芝)は三田駅(A7番出口)から徒歩2分の賃貸オフィスです。奥山ビルは三田駅(A7番出口)の他に田町駅(三田口)徒歩4分、芝公園駅(A1番出口)徒歩9分で利用も可能です。

