9階は現在募集がありません
ハラビルⅡ 9階
物件概要
ハラビルⅡのテナント募集中区画
現在、空室がございません。
アクセス
ハラビルⅡの物件情報
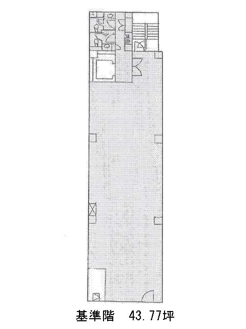
ハラビルⅡ(港区芝)は三田駅(A9番出口)から徒歩3分の賃貸オフィスです。2003年竣工の物件ということもあり、建物自体が比較的綺麗です。外観は全体的にグレーを基調とした色合いで、スタイリッシュな印象があります。エントランスホールやエレベーターホールは清潔感があり、落ち着いた空間となっております。基準階フロアは約40坪、ビル内にはOAフロアが備えられており、トイレは男女別となっております。セキュリティは機械警備を導入しているため安心です。駐車場設備も備えられております。周辺にはコンビニや飲食店、郵便局などがあるため、利便性が高いです。ハラビルⅡは三田駅(A9番出口)の他に田町駅(三田口)徒歩7分、芝公園駅(A1番出口)徒歩8分で利用も可能です。

