5階 501は現在募集がありません
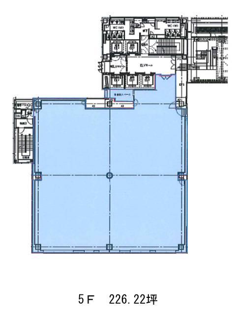
G―BASE田町 5階 501
物件概要
G―BASE田町のテナント募集中区画
現在、空室がございません。
G―BASE田町のアクセス
G―BASE田町の物件情報
G―BASE田町(港区芝)は三田駅(A3番出口)から徒歩3分の賃貸オフィスです。2018年竣工、地上18階建ての物件ということもあり、上層階からの眺望は良好となっており、建物自体も綺麗です。外観は全体的に明るめの色合いで、ライン状に並んだガラスウォールが大変美しい建物です。エントランスホールは清潔感があり、オシャレな空間となっております。基準階面積は約220坪を超える広さで、貸室内にはOAフロアが備えられており、トイレは男女別となっております。周辺にはコンビニや飲食店、郵便局などがあるため、利便性が高いです。G―BASE田町は三田駅(A3番出口)の他に田町駅(三田口)徒歩5分、泉岳寺駅(A4番出口)徒歩11分で利用も可能です。

